Contingut no disponible en català

Us trobeu en

Documento BOE-A-1980-10315

Orden de 16 de mayo de 1980 por la que se aprueba la Norma Tecnológica de la Edificación NTE-EFP, "Estructuras. Fábrica de: Piedra".

Publicado en:
«BOE» núm. 122, de 21 de mayo de 1980, páginas 10889 a 10913 (25 págs.)
Sección:
I. Disposiciones generales
Departamento:
Ministerio de Obras Públicas y Urbanismo
Referencia:
BOE-A-1980-10315
Permalink ELI:
https://www.boe.es/eli/es/o/1980/05/16/(1)

TEXTO ORIGINAL

Ilustrísimo señor:

De conformidad con lo dispuesto en el Decreto 3565/1972, de 23 de diciembre («Boletín Oficial del Estado» de 15 de enero de 1973), y Real Decreto 1650/1977, de 10 de junio («Boletín Oficial del Estado» de 9 de julio), a propuesta de la Dirección General de Arquitectura y Vivienda y previo informe del Consejo de Obras Públicas y Urbanismo,

Este Ministerio ha resuelto:

Artículo 1.

Se aprueba la Norma Tecnológica de la Edificación NTE-EFP, «Estructuras. Fábrica de: Piedra».

Artículo 2.

La presente Norma Tecnológica regula las actuaciones de diseño, cálculo, construcción, control, valoración y mantenimiento.

Artículo 3.

La presente Norma entrará en vigor a partir de su publicación en el «Boletín Oficial del Estado» y podrá ser utilizada a los efectos de lo establecido en el Decreto 3565/1972, de 23 de diciembre, con la excepción prevista en la disposición final tercera del Real Decreto 1650/1977, de 10 de junio, sobre normativa básica de la edificación.

Artículo 4.

En el plazo de seis meses, a partir de la publicación de la presente Orden ministerial en el «Boletín Oficial del Estado», podrán ser remitidas a la Dirección General de Arquitectura y Vivienda (Subdirección General de Edificación, Servicio de Normativa) las sugerencia y observaciones quo puedan mejorar el contenido o aplicación de la presente Norma.

Artículo 5.

Estudiadas y, en su caso, consideradas las sugerencias remitidas y a la vista de la experiencia derivada de su aplicación, la Dirección General de Arquitectura y Vivienda propondrá a este Ministerio las modificaciones pertinentes a la Norma aprobada por la presente Orden.

Lo que comunico a V. I. para su conocimiento y efectos.

Dios guarde a V. I.

Madrid, 16 de mayo de 1980.

SANCHO ROF

Ilmo. Sr. Director general de Arquitectura y Vivienda.

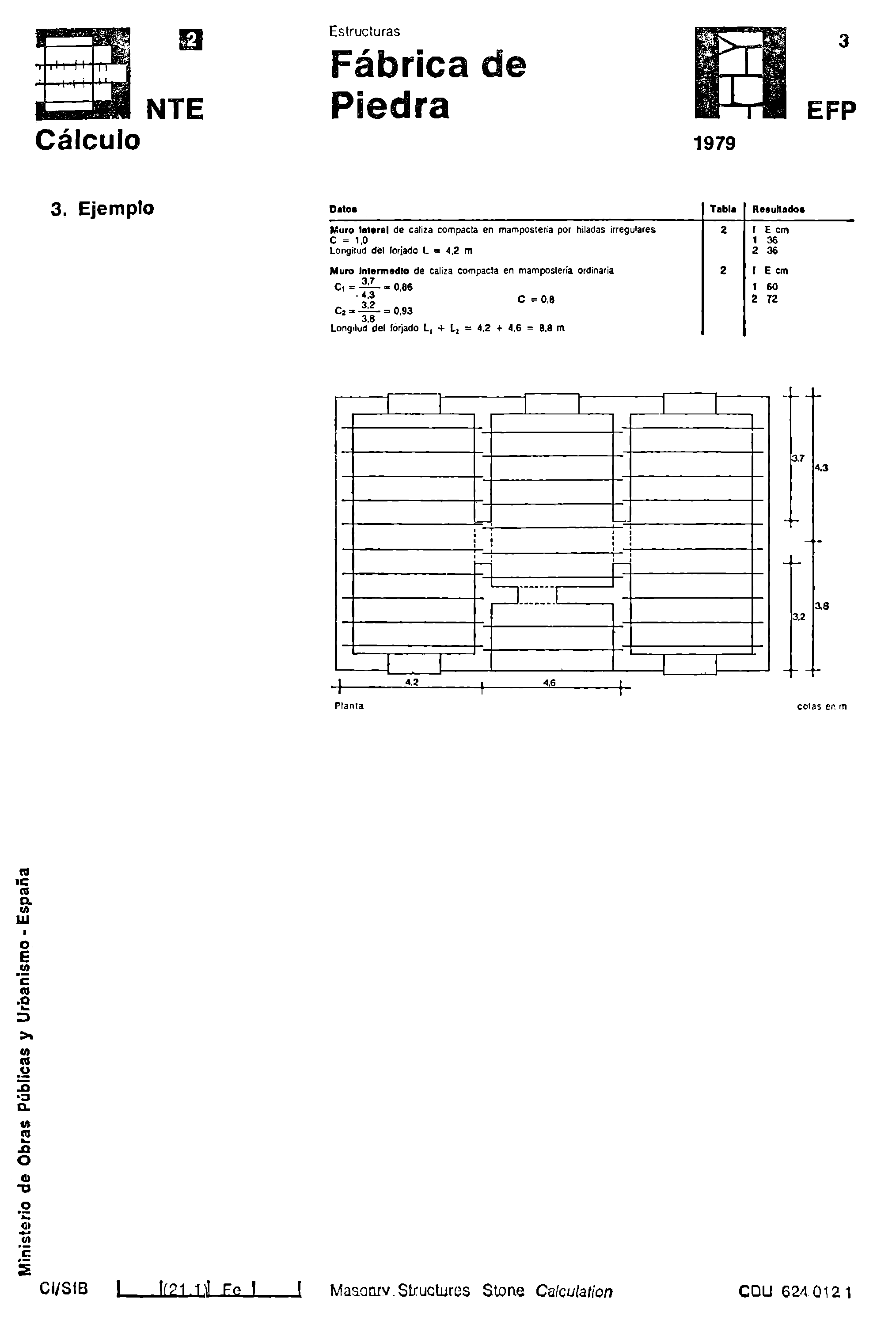
Imagen: /datos/imagenes/disp/1980/122/10315_15069084_image1.png

Imagen: /datos/imagenes/disp/1980/122/10315_15069084_image2.png

Imagen: /datos/imagenes/disp/1980/122/10315_15069084_image3.png

Imagen: /datos/imagenes/disp/1980/122/10315_15069084_image4.png

Imagen: /datos/imagenes/disp/1980/122/10315_15069084_image5.png

Imagen: /datos/imagenes/disp/1980/122/10315_15069084_image6.png

Imagen: /datos/imagenes/disp/1980/122/10315_15069084_image7.png

Imagen: /datos/imagenes/disp/1980/122/10315_15069084_image8.png

Imagen: /datos/imagenes/disp/1980/122/10315_15069084_image9.png

Imagen: /datos/imagenes/disp/1980/122/10315_15069084_image10.png

Imagen: /datos/imagenes/disp/1980/122/10315_15069084_image11.png

Imagen: /datos/imagenes/disp/1980/122/10315_15069084_image12.png

Imagen: /datos/imagenes/disp/1980/122/10315_15069084_image13.png

Imagen: /datos/imagenes/disp/1980/122/10315_15069084_image14.png

Imagen: /datos/imagenes/disp/1980/122/10315_15069084_image15.png

Imagen: /datos/imagenes/disp/1980/122/10315_15069084_image16.png

Imagen: /datos/imagenes/disp/1980/122/10315_15069084_image17.png

Imagen: /datos/imagenes/disp/1980/122/10315_15069084_image18.png

Imagen: /datos/imagenes/disp/1980/122/10315_15069084_image19.png

Imagen: /datos/imagenes/disp/1980/122/10315_15069084_image20.png

Imagen: /datos/imagenes/disp/1980/122/10315_15069084_image21.png

Imagen: /datos/imagenes/disp/1980/122/10315_15069084_image22.png

Imagen: /datos/imagenes/disp/1980/122/10315_15069084_image23.png

Imagen: /datos/imagenes/disp/1980/122/10315_15069084_image24.png

ANÁLISIS

  • Rango: Orden
  • Fecha de disposición: 16/05/1980
  • Fecha de publicación: 21/05/1980
  • Entrada en vigor: el 21 de mayo de 1980.
Referencias anteriores
  • DE CONFORMIDAD con:
Materias
  • Edificaciones
  • Normas Tecnológicas de la Edificación
  • Piedra

subir

Agència Estatal Butlletí Oficial de l'Estat

Avda. de Manoteras, 54 - 28050 Madrid