Está Vd. en

Documento BOE-A-2025-4795

Resolución 420/38092/2025, de 28 de febrero, de la Secretaría General Técnica, por la que se publica el Convenio entre el Instituto Nacional de Técnica Aeroespacial «Esteban Terradas» y la Universidad Antonio de Nebrija, para colaborar en el uso conjunto de parte de las instalaciones de los inmuebles A y E ocupados por el Centro General Marvá.

Publicado en:
«BOE» núm. 60, de 11 de marzo de 2025, páginas 32670 a 32679 (10 págs.)
Sección:
III. Otras disposiciones
Departamento:
Ministerio de Defensa
Referencia:
BOE-A-2025-4795

TEXTO ORIGINAL

Suscrito el 20 de febrero de 2025 el Convenio entre el Instituto Nacional de Técnica Aeroespacial «Esteban Terradas» y la Universidad Antonio de Nebrija para colaborar en el uso conjunto de parte de las instalaciones de los inmuebles A y E ocupados por el Centro General Marvá, en cumplimiento de lo dispuesto en el artículo 48.8 de la Ley 40/2015, de 1 de octubre, de Régimen Jurídico del Sector Público, procede la publicación en el «Boletín Oficial del Estado» de dicho convenio, que figura como anexo de esta resolución.

Madrid, 28 de febrero de 2025.–El Secretario General Técnico, José Luis García Castell.

ANEXO
Convenio entre el Instituto Nacional de Técnica Aeroespacial «Esteban Terradas» y la Universidad Antonio de Nebrija para colaborar en el uso conjunto de parte de las instalaciones de los inmuebles A y E ocupados por el Centro General Marvá

En Torrejón de Ardoz, 20 de febrero de 2025.

REUNIDOS

De una parte, don Julio Ayuso Miguel, Director General del Instituto Nacional de Técnica Aeroespacial «Esteban Terradas» (INTA), cargo para el que fue designado por Real Decreto 362/2022, de 10 de mayo, en nombre y representación del citado Instituto, con domicilio en la carretera de Ajalvir, km. 4,5, Torrejón de Ardoz, 28850 Madrid, conforme a lo dispuesto en el artículo 16 del Estatuto del INTA, aprobado por Real Decreto 925/2015, de 16 de octubre.

Y de otra parte, don José Muñiz Fernández, actuando en nombre y representación de la Universidad Nebrija, con NIF A-78094158, en su condición de Rector Magnífico, por acuerdo adoptado por el Consejo Rector en su reunión de fecha 14 de julio de 2020, y en ejercicio de las facultades conferidas en el artículo 20 de la Ley Orgánica 6/2001, de 21 de diciembre, de Universidades, y el Decreto 6/2012, de 19 de enero, del Consejo de Gobierno, por el que se aprueban las Normas de Organización y Funcionamiento de la Universidad Nebrija, y domicilio a los efectos del presente convenio en Campus de Ciencias de la Vida en la Berzosa, CP 28248 Hoyo de Manzanares (Madrid).

Ambas partes tienen capacidad suficiente para suscribir el presente convenio, y a tal efecto,

INTERVIENEN

En la representación que ostentan de sus respectivos organismos, en virtud de los nombramientos que legalmente les fueron conferidos, con el fin de instrumentar el presente convenio entre el Instituto Nacional de Técnica Aeroespacial «Esteban Terradas» y la Universidad Nebrija, a tal efecto,

EXPONEN

Primero.

Que el Instituto Nacional de Técnica Aeroespacial «Esteban Terradas» (INTA), Organismo Público de Investigación de acuerdo con lo dispuesto en la Ley 14/2011, de 1 de junio, de la Ciencia, la Tecnología y la Innovación, es un Organismo Autónomo, adscrito al Ministerio de Defensa a través de la Secretaría de Estado de Defensa, de los previstos en el artículo 84.1.a) 1.º, de la Ley 40/2015, de 1 de octubre, de Régimen Jurídico del Sector Público, especializado en la investigación y desarrollo tecnológico, de carácter dual, en los ámbitos aeroespacial, de la aeronáutica, de la hidrodinámica, y de las tecnologías de la defensa y seguridad, que tiene las funciones señaladas en el artículo 7.2 de su estatuto, aprobado mediante Real Decreto 925/2015, de 16 de octubre.

Segundo.

Que la Universidad Nebrija (Universidad) es una Universidad creada por la Ley 23/1995, de 17 de julio, publicada en el BOE número 170 del martes 18 de julio de 1995, páginas 21881-21883, que fue constituida por tiempo indefinido mediante escritura otorgada el día 23 de octubre de 1985, ante el Notario de Madrid, don Antonio Pérez Sanz e inscrita en el Registro Mercantil de Madrid al tomo 2676, folio 96, hoja número M-46.361.

Que la Universidad tiene como fines básicos la creación, desarrollo, transmisión y crítica de la Ciencia, la Técnica y la Cultura; la preparación para el ejercicio de actividades profesionales o de creación artística que exijan el desarrollo de habilidades, capacidades, actitudes y valores, así como la aplicación de conocimientos y métodos técnicos, científicos y artísticos; y finalmente, la investigación con apoyo científico y técnico al desarrollo cultural, social y económico generales, de conformidad con artículo 3 del anexo al Decreto 6/2012, de 19 de enero, del Consejo de Gobierno, por el que se aprueban las Normas de Organización y Funcionamiento de la Universidad Nebrija.

Tercero.

Que ambas partes ya suscribieron en el pasado dos convenios, el primero firmado el 25 de febrero de 2015: «Convenio marco de colaboración entre el Instituto Nacional de Técnica Aeroespacial «Esteban Terradas» y la Universidad Nebrija en el campo de la investigación científica y el desarrollo tecnológico» y el segundo firmado el 10 de julio de 2015: «Convenio específico de colaboración entre el Instituto Nacional de Técnica Aeroespacial y la Universidad Nebrija para la creación de una unidad conjunta de investigación (Joint Research Unit) sobre investigación en sistemas electrónicos».

En este momento están interesadas en profundizar en la colaboración acordada, particularmente en los campos científicos y técnicos de interés común, incluyendo la utilización conjunta de espacios, instalaciones, máquinas y herramientas de investigación por los empleados e investigadores del INTA y de la Universidad, así como por los jóvenes estudiantes universitarios.

Cuarto.

Que, conforme a lo expuesto, ambas partes, al amparo de las atribuciones que les confieren sus respectivas normas de funcionamiento, proceden a suscribir el presente convenio con arreglo a las siguientes

CLÁUSULAS

Primera. Objeto.

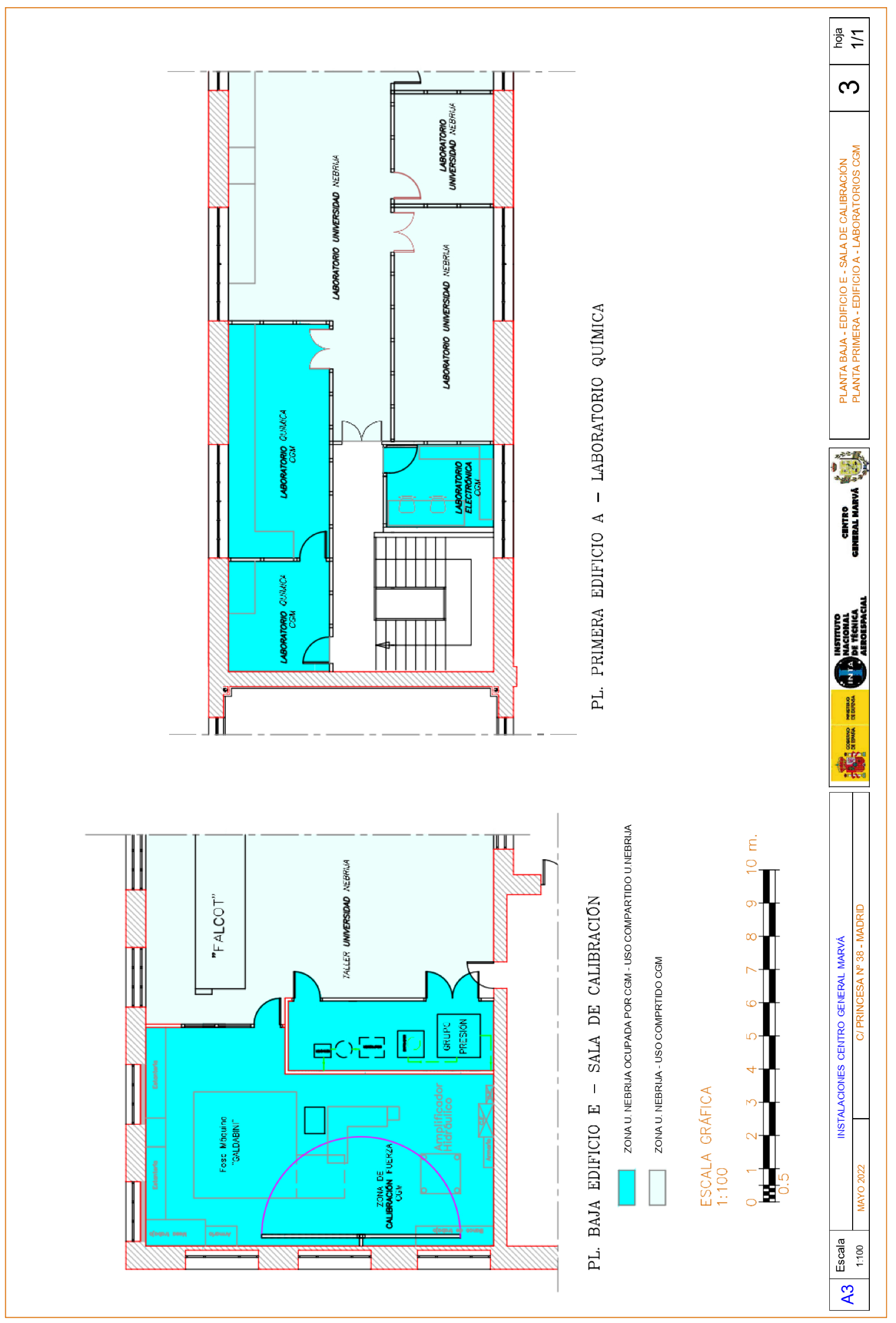
El objeto del presente convenio es establecer las condiciones de colaboración entre el personal del Instituto Nacional de Técnica Aeroespacial «Esteban Terradas» (INTA) y el de la Universidad Nebrija (Universidad), en el uso común de las instalaciones o equipos propiedad del INTA existentes en el edificio definido en la concesión demanial como «A», en planta primera, en concreto, las salas correspondientes al laboratorio de química y en el edificio definido como «E». (Ver anexo 1 planos).

Derivado de que la Universidad ha resultado también adjudicataria de las instalaciones hasta ahora ocupadas por el Centro General Marvá con entradas por la calle Serrano Jover número 2 de Madrid, que tienen máquinas e instalaciones compartidas entre ambas instituciones.

Segunda. Uso, acceso y mantenimiento de los espacios, instalaciones y maquinarias compartidas.

a) Edificio «A»: el plano número 3 del anexo 1 planos, representa el espacio asignado al uso habitual de la Universidad. Eventualmente el INTA podrá hacer uso de las instalaciones ubicadas en la zona de la Universidad, coordinando con el responsable de la Universidad dicho uso, de forma que no se altere el normal funcionamiento de la misma. Del mismo modo, la Universidad, podrá solicitar el uso eventual de las instalaciones y/o equipos ubicados en la zona INTA, de acuerdo con el responsable de dichas instalaciones.

b) Edificio «E»: durante la jornada de trabajo ordinaria del INTA, el personal, civil o militar, destinado en el INTA podrá acceder a la sala de calibración de fuerza, circulando a través de este edificio. Se podrá solicitar el uso de estas instalaciones de calibración por parte de la Universidad, bajo la supervisión del personal de INTA y siempre que no altere el normal desarrollo de los trabajos correspondientes a la actividad habitual del INTA.

c) Accesos a las instalaciones: de acuerdo con los planos adjuntos, cada una de las partes podrá acceder a su zona de uso habitual de manera independiente, según se indica en el anexo 1 planos. El personal del INTA podrá acceder desde sus instalaciones al patio del Complejo Princesa, o a la inversa, a través de la zona de la Universidad, para el traslado de material pesado.

d) Mantenimiento: cada una de las partes se hará cargo del normal mantenimiento de los equipos y/o instalaciones ubicados en su zona de trabajo habitual.

Tercera. Aportaciones de las partes.

No se requiere inicialmente la aportación de medios humanos o económicos por ninguna de las partes para la ejecución de este convenio. No obstante, en el seno de la Comisión Mixta a la que se refiere la estipulación siguiente, podrán exponerse las necesidades que hubieran podido detectarse y en su caso se adoptarán de común acuerdo las decisiones que procedan. Los acuerdos que se adopten se plasmarán mediante la suscripción de la correspondiente adenda de modificación del convenio, previa sustanciación de los trámites previstos en la Ley 40/2015, de 1 de octubre.

En cuanto a los medios materiales, estando el presente convenio referido a instalaciones materiales e infraestructuras dedicadas fundamentalmente a tareas administrativas, la investigación y la docencia, se acuerda que las partes pondrán a disposición de la otra para su racional utilización conjunta, y en el bien entendido caso de que no se interfieran las actividades propias programadas, no solo en los espacios y con la maquinaria de utilización conjunta que se relacionan en la propia concesión demanial (cláusula 9 de la Resolución de la Dirección General de Infraestructuras del Ministerio de Defensa, de 27 de octubre de 2015, por la que se otorga Concesión demanial en favor de la Universidad Antonio de Nebrija, para el uso como centro de enseñanza e investigación universitaria de una parte del inmueble ocupado por el antiguo Laboratorio de Ingenieros del Ejército «General Marvá», en Madrid) sino en otras instalaciones privativas para su uso conjunto por las personas vinculadas a la otra institución en las mismas condiciones de acceso, seguridad y disfrute que las propias.

Dicha cláusula 9 por la que se acuerda la licitación indica en el apartado 9.1 Régimen de uso de locales y maquinaria. «En el local “E” está instalada la máquina que será de uso compartido denominada “Galdabini” de calibración de fuerza hasta 5.000 kN».

La Universidad y el INTA cooperarán, además, en el ámbito de sus respectivas funciones y conjuntamente, para difundir la Cultura de Defensa, los valores y principios que rigen las Fuerzas Armadas, así como, de manera especial, en el ámbito de la investigación. Dicha colaboración mutua se formalizará, cuando sea necesario, mediante la formalización de convenios adicionales al presente, y podrá consistir, con ánimo meramente enunciativo y no limitativo, en: la organización de eventos científicos, de divulgación científica o de repercusión social o mediática en las temáticas comunes a ambas instituciones; el intercambio de publicaciones o investigadores; la cooperación en proyectos de investigación tanto en el nivel autonómico como nacional, europeo o internacional; la cotutela de tesis doctorales por personal acreditado con el título de doctor y que cumpla con los requisitos necesarios; la oferta de prácticas y becas a estudiantes de la Universidad por parte del INTA para la Subdirección de Sistemas Terrestres, las publicaciones conjuntas en revistas y libros; la doble filiación de determinados artículos o publicaciones; así como en general cualquier otra colaboración intelectual, científica u operativa que resulte conveniente al interés de ambas partes y a las misiones que cada una tiene encomendadas.

Como acciones concretas se establecen las siguientes:

1. La Universidad analizará las necesidades de formación del personal del INTA, con el doble objetivo de identificar posibles programas formativos que ofrecer, así como apoyar la mejora competitiva de los distintos proyectos/servicios que el Centro General Marvá ofrece a sus clientes.

2. La Universidad podrá optar a los distintos concursos de licitación del INTA para proveerse de proyectos o servicios, relacionados con la actividad docente e investigadora de la propia Universidad.

3. La Universidad podrá colaborar en el proyecto de ampliación del museo del Centro General Marvá en las condiciones que al efecto acuerden las partes, a cambio de lo cual dicho museo podrá ser visitado por profesores y alumnos de la Universidad al menos una vez a la semana. Para garantizar la seguridad de los accesos, previamente a cada visita, la Universidad enviará una lista de asistentes y centralizará además el acceso a través del Laboratorio de Prototipos.

4. Ambas partes acuerdan analizar la posibilidad de instalar equipos en espacios de la Universidad o del INTA (Centro General Marvá) para su uso conjunto, así como analizar la habilitación de accesos entre los distintos edificios.

5. En la misma línea de compartir espacios de una u otra parte, se incluye la libre utilización por parte del personal del Centro General Marvá de las instalaciones de restauración de la Universidad, permitiendo, por tanto, el libre acceso e idénticas condiciones que el personal de la Universidad.

Resulta expresa y consensuada entre las partes la prioridad en los usos respectivos de los medios materiales puestos a disposición en el presente convenio del personal vinculado a la institución cedente, con preferencia respecto de la invitada, comprometiéndose ambas no obstante a encontrar fórmulas que permitan la materialización práctica de lo aquí acordado sin más trabas que las derivadas de la lógica y la buena fe.

Cuarta. Comisión Mixta.

Se constituirá una Comisión Mixta paritaria, integrada por al menos un representante designado por cada parte, y a la que corresponderá proponer posibilidades de colaboración en temas de interés común, aclarar y decidir cuantas dudas o controversias puedan plantearse en la interpretación y ejecución del presente convenio y realizar el seguimiento de este.

La Comisión Mixta se reunirá cuando lo solicite alguna de las partes y, en todo caso, al menos una vez al año.

Por parte del INTA, formará parte de esta Comisión Mixta el Subdirector General de Sistemas Terrestres, o persona en quien delegue, y por parte de la Universidad, para todo lo relativo al presente convenio, el Vicerrector de Ordenación Académica, o persona en quien delegue.

Quinta. Protección de datos.

Las partes se comprometen a cumplir, en los términos que sea de aplicación, lo que está establecido en el Reglamento (UE) 2016/679, del Parlamento Europeo y del Consejo, de 27 de abril de 2016, relativo a la protección de las personas físicas en lo que respecta al tratamiento de datos personales y a la libre circulación de estos datos y por el que se deroga la Directiva 95/46/CE (Reglamento General de protección de datos, RGPD), y en la Ley Orgánica 3/2018, de 5 de diciembre, de Protección de Datos Personales y garantía de los derechos digitales, así como en las disposiciones de desarrollo que se dicten durante la vigencia del presente convenio.

En concreto, las partes se comprometen a:

a. Comunicar a la otra parte datos personales de interesados solo en la medida en que dichos datos personales se hayan recopilado y tratado legalmente;

b. Garantizar que los interesados han sido debidamente informados de conformidad con la legislación aplicable en materia de protección de datos y que, según proceda, se ha obtenido la autorización válida de los interesados, de forma particular en relación con el tratamiento realizado por las partes a efectos del presente convenio;

c. Utilizar los datos personales solo para los fines estrictamente necesarios para cumplir el presente convenio y tal como acuerden las partes;

d. Compartir los datos personales recabados y tratados como resultado del presente convenio solo con terceros que proporcionen las mismas garantías que se definen a continuación;

e. Abstenerse de transferir datos personales a terceros ubicados fuera del Espacio Económico Europeo sin obtener el consentimiento previo de la otra parte;

f. Adoptar medidas técnicas y organizativas para garantizar un nivel de protección adecuado de los datos personales tratados, y

g. Eliminar los datos personales cuando dejen de ser necesarios a efectos del presente convenio o a instancias de la otra parte;

h. Incorporar a los Registros de Actividades de Tratamiento de las partes intervinientes los datos personales que se traten con motivo del presente convenio, con la finalidad de gestionar las actuaciones que se prevén en el mismo. Los titulares de los datos personales podrán ejercitar ante los responsables de los datos personales los derechos de acceso, rectificación, supresión y portabilidad de los datos personales, y de limitación u oposición al tratamiento;

i. Sobre el INTA y la Universidad recaen las responsabilidades que deriven de la condición de responsables del tratamiento de datos personales. El INTA y la Universidad asumen la obligación de informar a los interesados sobre las características del tratamiento de los datos personales, y las obligaciones que se deriven de la implantación de medidas técnicas y organizativas de cada corresponsable y el mecanismo establecido en caso de violaciones de seguridad; así como el establecimiento de los oportunos mecanismos de respuesta al ejercicio de derechos por parte de los interesados;

j. Si el INTA y la Universidad destinasen o tratasen los datos personales a finalidad distinta de la prevista en el presente convenio, los comunicaran o los utilizaran incumpliendo lo estipulado en el convenio y/o la normativa de protección de datos personales, cada uno de los antes citados responderá de las responsabilidades que deriven de los daños y perjuicios en que pueda haber incurrido, a fin de garantizar la indemnización efectiva del interesado, sin perjuicio de lo previsto en el artículo 82.5 RGPD europeo;

k. Las garantías que, en orden a los datos personales se establecen, tendrán validez durante la vigencia del presente convenio y de sus prórrogas.

Sexta. Vigencia.

Este convenio, con arreglo al artículo 48.8 de la Ley 40/2015, de 1 de octubre, de Régimen Jurídico del Sector Público, se perfecciona con el consentimiento de las partes, y resultará eficaz una vez inscrito, en el plazo de cinco días hábiles desde su formalización, en el Registro Electrónico Estatal de Órganos e Instrumentos de Cooperación del sector público estatal. Asimismo, será publicado en el plazo de diez días hábiles desde su formalización en el «Boletín Oficial del Estado».

Su plazo de vigencia será de cuatro años, desde que devenga eficaz, pudiendo prorrogarse por mutuo acuerdo expreso de las partes antes de su finalización, por un periodo de cuatro años, según los límites temporales previstos en el artículo 49.h).2.º de la Ley 40/2015, de 1 de octubre, mediante la suscripción de la correspondiente adenda al presente convenio, previa sustanciación de los trámites previstos normativamente. Dicha adenda de prorroga surtirá efectos con su inscripción en REOICO antes de la fecha de extinción del convenio. Asimismo, la adenda será publicada en el «Boletín Oficial del Estado».

Séptima. Modificación.

La modificación del contenido del convenio requerirá acuerdo unánime de los firmantes, de acuerdo con lo previsto en el artículo 49.g) de la ley y se recogerá expresamente mediante la firma de una adenda.

Octava. Causas de extinción.

Este convenio quedará extinto siempre que incurra en cualquiera de las causas de extinción establecidas en el artículo 51 de la Ley 40/2015, de 1 de octubre, de Régimen Jurídico del Sector Público; en el caso de resolución del convenio, cada parte deberá satisfacer los compromisos que de él se deriven, de acuerdo con el artículo 52 de la misma ley.

Si a la resolución del presente convenio existiesen actuaciones en curso, la Comisión Mixta podrá acordar la continuación y finalización de aquellas que consideren oportunas, estableciendo un plazo improrrogable para su finalización, transcurrido el cual deberá realizarse la liquidación de las mismas.

En cualquier caso, la resolución del convenio por cualquiera de las causas anteriormente citadas no generará efectos indemnizatorios.

No obstante, a la finalización del presente convenio las obligaciones de confidencialidad se mantendrán vigentes.

El presente convenio estará siempre supeditado a las necesidades de la Defensa Nacional, por lo que, surgida tal necesidad, el convenio quedará suspendido, en tanto persista dicha necesidad o, en su caso, resuelto por parte del INTA, sin que sea preciso aviso o denuncia previa en este sentido por parte del INTA.

Novena. Legislación aplicable y jurisdicción competente.

El presente convenio es de naturaleza jurídico-administrativa, de conformidad con lo dispuesto en el artículo 47, y siguientes, de la ley 40/2015, de 1 de octubre, de Régimen Jurídico del Sector Público, y de conformidad con el artículo 34 de la Ley 14/2011, de 1 de junio, de la Ciencia, la Tecnología y la Innovación, en la redacción dada por el Real Decreto-ley 3/2019, de 8 de febrero, de medidas urgentes en el ámbito de la Ciencia, la Tecnología, la Innovación y la Universidad, estando sometido a la legislación española.

Las cuestiones litigiosas que pudieran surgir entre las partes como consecuencia de la ejecución del convenio deberán solventarse por mutuo acuerdo. Si no pudiera alcanzarse dicho acuerdo, las posibles cuestiones litigiosas serán de conocimiento y competencia del orden jurisdiccional contencioso administrativo.

Décima. Imagen institucional.

Las partes se comprometen a lo dispuesto en la disposición adicional segunda del Real Decreto 1465/1999, de 17 de septiembre, por el que se establecen criterios de imagen institucional y se regula la producción documental y el material impreso de la Administración General del Estado.

En prueba de conformidad, los representantes de las partes firman el presente convenio, electrónicamente, en el lugar indicado al comienzo.–Por el INTA, el Director General, Julio Ayuso Miguel.–Por la Universidad, el Rector Magnífico, José Muñiz Fernández.

ANEXO I
Planos

Imagen: /datos/imagenes/disp/2025/60/4795_15416579_1.png

Imagen: /datos/imagenes/disp/2025/60/4795_15416580_1.png

Imagen: /datos/imagenes/disp/2025/60/4795_15416581_1.png

subir

Agencia Estatal Boletín Oficial del Estado

Avda. de Manoteras, 54 - 28050 Madrid